25 sie 2016

Zapraszamy na Międzynarodowe Targi Maszyn i Narzędzi dla Przemysłu Drzewnego i Meblarskiego DREMA 2016.

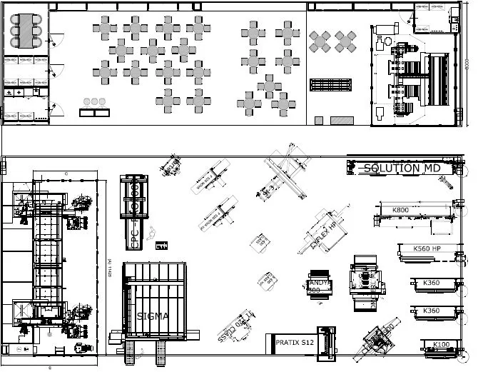
Przygotowania do najważniejszej imprezy targowej trwają... Na powierzchni ponad 700m2 obok sprawdzonych rozwiązań zaprezentujemy tegoroczne nowości które miały swój debiut na Drzwiach otwartch w marcu i czerwcu tego roku oraz Cyflexa S który na tegrocznej Dremie będzie miał swoją premierę!

Zapraszamy na Halę nr 6A stoisko 15

 

 

myPortal Kontakt